Skip to main content

The Complete Solution for Your Window and Door Business

A+W Cantor delivers efficiency and transparency

ordering software

A+WToday’s competitive industry depends on efficiency and transparency. A+W Cantor delivers both—integrating administration, production, sales, and service into one seamless platform. From the first customer inquiry to final installation, every step is mapped for total visibility and control. 

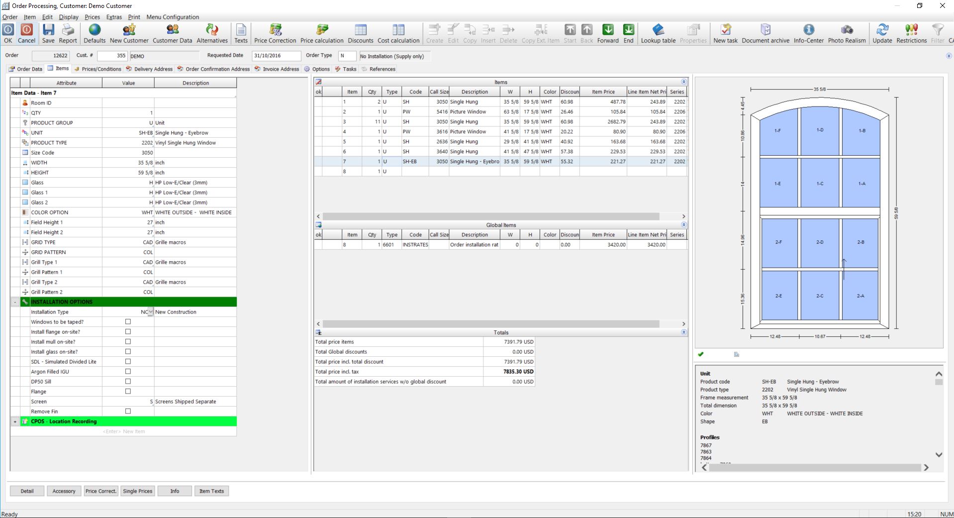
A+W Cantor is a powerful ERP solution tailored for manufacturers of windows, doors, roller shutters, gates, and insect screens. Its modular design lets you expand as you grow. Manage your entire process in one system: quotations, order entry, purchasing, materials management, production, delivery, installation, invoicing, and service. An integrated document archive keeps processing nearly paperless, saving time and reducing errors. 

A+W Cantor unites your entire operation, ensuring transparency, efficiency, and quality. With fewer errors, faster processes, and instant status updates, you can meet deadlines, keep customers informed, and adapt to changing demands. For manufacturers, A+W Cantor is the complete, future-ready solution. 

Learn more

Learn more about A+W Cantor.